Go Back

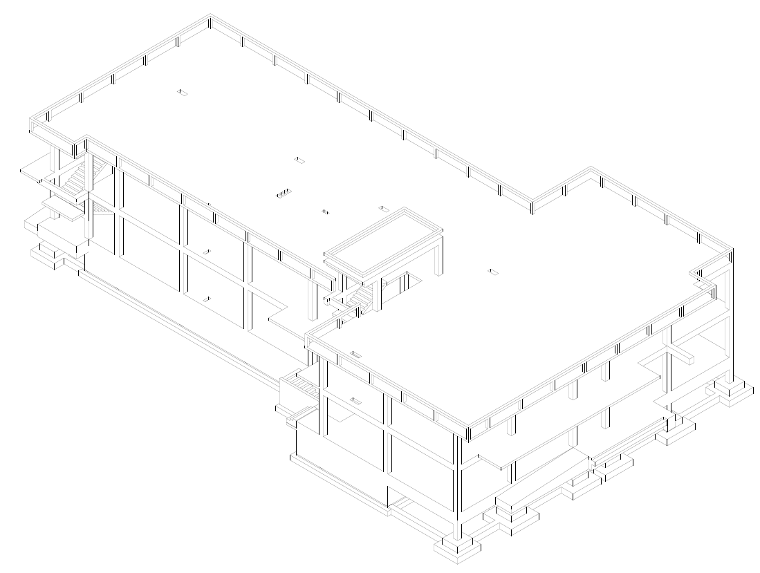
School

ABOUT PROJECT

LOCATION – Mtskheta, Chardakhi

STATUS – Ongoing

ARCHITECTURE – Java

YOUR DESIGN OUR STRUCTURE