ნასახი
მთავარი
ჩვენს შესახებ
მიმოხილვა
მომხმარებლები
გუნდი
პროექტები
მრავალბინიანი შენობები
ინდივიდუალური საცხოვრებელი სახლები
კომერციული და საზოგადოებრივი შენობები
რეკონსტრუქციები
სერვისები
კონტაქტი
EN
უკან
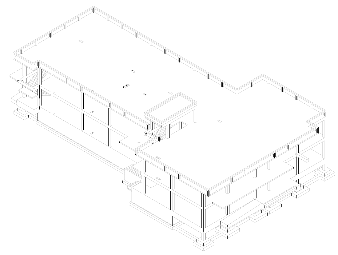
სკოლა
Previous
Next
პროექტის შესახებ
ადგილმდებარეობა - მცხეთა, ჩარდახი
სტატუსი - მიმდინარე
არქიტექტურა – Java
შენი დიზაინი ჩვენი სტრუქტურა